https://efloors.com/ges/le="font-family: Arial; font-weight: bold;">

DURACERAMIC INSTALLATION PROCEDURES
SAFETY
Safety for yourself and others on the job site is your responsibility as a professional flooring installer. Read and observe the following safety precautions.
-
Read and follow the safety precautions and warnings printed on the label of the installation accessory products being used. Obtain the appropriate MATERIALSAFETY DATA SHEETS (MSDS) for information that may be required for products which may contain hazardous materials. DuraCeramic does not have MSDS because it is classified as an "article" and not a chemical. MSDS are available for the adhesive, joint sealer, and grout. You may obtain an MSDS for these products by calling or writing to your Congoleum distributor or contacting Congoleum at the address or phone number listed on this page.
-
Various safety precautions should be taken when preparing subfloors.
-
Wood and concrete: If working on wood or concrete subfloors, use proper safety precautions when sanding or grinding. Avoid creating dust. Concrete and cementitious patching compounds contain crystalline silica, which is a known carcinogen. Wood
dust is classified as a nasal carcinogen in humans. Airborne wood dust may also be an explosive hazard.
-
Resilient Flooring
-
WARNING
Do not sand, dry sweep, dry scrape, drill, saw, beadblast, or mechanically chip or pulverize existing resilient flooring, backing, lining felt, asphaltic "cutback" adhesive, or other adhesive. These products may contain asbestos fibers and/or crystalline silica. Avoid creating dust. Inhalation of such dust is a cancer and respiratory tract hazard. Smoking by individuals exposed to asbestos fibers greatly increases the risk of serious bodily harm. Unless positively certain that the product is a non-asbestos containing material, you must presume it contains asbestos. Regulations may require that the material be tested to determine asbestos content and may govern the removal and disposal of material. Whenever possible, existing flooring should be left in place and the new floor installed over the top. If you must remove old flooring material, contact your retailer or Congoleum Corporation, Installation Department, PO. Box 3127, Mercerville, NJ 08619, for a copy of recommended work practices for the removal of resilient floor coverings. These practices should be followed.
NOTICE
Various federal, state and local government agencies have regulations covering the removal of in-place asbestos containing material. If you contemplate the removal of a resilient floor covering structure that contains (or is presumed to contain) asbestos, you must review and comply with all applicable regulations. Regulations outside the United States may vary.
Copies of the Resilient Floor Covering Institute (RFCI) Recommended Work Practices for the Removal of Resilient Floor Coverings are available from:
| Congoleum Corporation |
Resilient Floor Covering Institute |
| Installation Department |
401 East Jefferson Street |
| P.O. Box 3127 |
Suite 102 |
| Mercerville, NJ 08619 |
Rockville, MD 20850 |
Please note that the RFCI Recommended Work Practices are subject to change as new practices are incorporated. It is your responsibility to determine that the recommended work practices you use are those in effect.
MOLD AND MILDEW ISSUES
Prior to removing an existing floor following the RFCI Recommended Work Practices for Removal of Resilient Floor Coverings (unless state or local law requires other measures), if
there are visible indications of mold or mildew or the presence of a strong musty odor in the area where resilient flooring is to be removed or installed, the source of the problem should be
identified and corrected before proceeding with the flooring work. In virtually all situations, if there is a mold issue, there is or has been an excessive moisture issue. Visible signs of mold or
mildew (such as discoloration) can indicate the presence of mold or mildew on the subfloor, on the underlayment, on the back of the flooring, and sometimes even on the floor surface. If mold or mildew is discovered during the removal or installation of resilient flooring, all flooring work should stop until the mold or mildew problem (and any related moisture problem) has been
addressed.
In areas where flooding has occurred, it is recommended that damaged flooring be removed following the RFCI Recommended Work Practices for Removal of Resilient Floor Coverings (unless state or local law requires other measures). Any underlayment and subfloor should be allowed to thoroughly dry and, if necessary cleaned, disinfected, and otherwise remediate consistent with the U.S. Environmental Protection Agency (EPA) guidelines referenced below. Any structural damage or signs of mold or mildew must be corrected before reinstalling
resilient flooring. This may include, for example, replacement of the underlayment and/or subfloor.
For water damage caused by leaking fixtures, the source of the moisture leak must be located and corrected. Any structural damage must be repaired and any signs of mold or residual moisture must be addressed before replacing the resilient flooring in the affected area.
To deal with mold and mildew issues, you should refer to the EPA guidelines that address mold and mildew. Depending on the mold and mildew condition present, those remediation
options range from clean up measures using gloves and biocide to hiring a professional mold and mildew remediation contractor to address the condition, Remediation measures may require
structural repairs such as replacing the underlayment and/or subfloor contaminated with mold and mildew as a result of prolonged exposure to moisture.
The EPA mold guidelines are contained in two publications "A Brief Guide To Mold, Moisture and Your Home" (EPA 402-K-02-003) and "Mold Remediation in Schools and Commercial
Buildings" (EPA 402-K-01-001), Appendix B of the "Mold Remediation in Schools and Commercial Buildings" publication describes potential health effects from exposure to mold, such as allergic and asthma reactions and irritation to eyes, skin, nose and throat. These publications can be located on EPA's website at
http://www.epa.gov/mold
-
Keep work areas free of obstructions, such as tools and scrap or loose tiles, and dispose of scrap materials promptly and properly to eliminate a slip or trip hazard.
-
Always use the correct lifting practices.
-
Use only UL® approved electrically powered tools equipped with a dust collector. Read and follow the safety precautions and recommended procedures for using power tools.
-
Use heavy-duty extension cords and keep them in good repair.
-
If using minerals spirits as suggested in this guide, CAUTION: Mineral spirits is a flammable material. Read and follow cautionary instructions on the labels of these products.
-
Wear non-conducting rubber-soled shoes and use a ground fault interrupter (GFI) when using power equipment in damp or wet areas.
-
Wear protective equipment when appropriate such as safety glasses, respirators, NlOSH-designated dust masks, kneepads, gloves, etc.
DuraCeramic, DuraCeramic Options and DuraPlank
DuraCeramic is an innovative flooring product with unique installation procedures that vary from traditional ceramic and natural stone. Its proven success has paved the way for DuraCeramic Options and DuraPlank.
DuraCeramic Options is a floor and wall tile with embossed lines through the center of the tile in both directions. The tiles can be installed like DuraCeramic, in a full 16"x 16" format or the embossed lines can be scored with a sharp utility knife and flexed to separate the tile to create
an 8" x 8" format. This feature provides opportunities for creating custom floors with coordinating wall, base and backsplash by adding accent colors, borders and insets or
combining it with DuraCeramic for different size formats.
DuraPlank comes in 4'1/2" x 36" planks in a variety of real wood colorations. DuraPlank features the beauty of real wood with the durability and moisture resistance of DuraCeramic. Use DuraPlank in any room in the home or combine it with DuraCeramic or DuraCeramic Options to create custom borders and insets.
DuraCeramic, DuraCeramic Options and DuraPlank are constructed with a limestone composite base that is fortified with a polymeric resin. It provides toughness and flexibility to resist breaking from normal subfloor deflection, expansion and contraction. This feature permits fast, easy installation using a pressure sensitive adhesive over a wide variety of wall and subfloor surfaces without extensive preparation.
16" x 16" DuraCeramic Options with embossed lines
Score and separate into 8" tiles for an 8" x 8" grouted installation
OVERVIEW
Use Congoleum DS 100 DuraSet Adhesive, for all approved floor and wall applications. Set tiles and planks into tacky dry adhesive for floor applications and semi tacky dry adhesive
for wall applications. PL® Polyurethane Construction Adhesive can also be used for wall, backsplash and base applications, (not recommended for flooring applications). Mortar, mastic or other adhesives are not recommended.
Depending on the desired appearance, tiles can be installed with or without grout.
-
Grouted floor and wall tiles* are laid with a1/16" to l/4" space at the joints depending on the desired grout line width. (DuraCeramic Options that are scored and separated must be grouted.) Congoleum DuraCeramic Premixed Grout can be applied immediately after tile is installed. Do not use cement, epoxy or other premix grouts.
-
Ungrouted floor and wall tiles* are laid with no space at the joints. The joints on an ungrouted tile floor should be sealed with Congoleum DS200 DuraCeramic Joint Sealer
to lock out surface water and aid cleaning. Sealing is highly recommended for all ungrouted floors. Do not use DS200 Joint Sealer on walls or other vertical surfaces.
-
DuraPlank is designed as a flooring product but it can also be installed on the walls to create a durable easy to clean surface. DuraPlank is always installed with no space
between the joints. Do not seal the joints with DS200 Joint Sealer or apply grout to joints.
* Do not apply grout or joint sealer to the embossed center lines when installing DuraCeramic Options in a full 16" x 16" format. Apply grout or joint sealer to the tile joints only.
INSTALLATION ACCESSORY MATERIALS
-
DSl00 DuraSet Adhesive - For all approved tile and plank floor and wall applications
-
DuraCeramic Premixed Grout - For joints on grouted floor and wall tiles.
-
DS200 DuraCeramic Joint Sealer - For joints on ungrouted floor tiles only.
-
DuraCeramic Installation Accessory Kit - For grouted applications.
-
Congoleum UnderFlor - Floating Underlayment System.
RECOMMENDED USE
DuraCeramic, DuraCeramic Options and DuraPlank are recommended for residential and light commercial use in dry, interior, heated areas.
Residential
Recommended for use in all areas of the home except countertops, ceilings and wet areas like shower walls and shower floors.
Light Commercial
Recommended for areas receiving light commercial foot and wheel traffic. Install on floors, walls, and facing of counters and merchandise displays.
| Retail |
Office |
|
|
|
|
|
|
|
|
|
- Clothing and Apparel Shops
|
|
| Health Care |
|
|
|
|
- Assisted Living - Suitable for Light Wheel Chair Traffic
|
Hospitality |
| Educational |
|
|
|
|
|
|
|
Notes:
DuraCeramic, DuraCeramic Options and DuraPlank are not recommended for installation in exterior or unheated areas, wet areas, like shower walls or shower floors, countertops, ceilings, in commercial kitchens or food processing areas or on ramps. For information on other specific applications, contact the Congoleum Installation and Technical Office at (609) 584-3888. Areas receiving more concentrated traffic and or routine spills should be protected with floor polish and a regular maintenance schedule should be followed. See Care and Maintenance for more information.
INSTALLATION ACCESSORIES INFORMATION
|
|
|
DS100 DuraSet Adhesive |
|
DS200 DuraCeramic
Joint Sealer |
|
DuraCeramic
Premixed Grout |
|
|
|
|
|
|
|
| Order Code |
|
DS100 |
|
DS200 |
|
Use specific color code |
|
|
|
|
|
| Description |
|
Solvent free, acrylic, pressure-sensitive adhesive |
|
Water-based, flexible acrylic sealer |
|
Premixed sanded, acrylic grout |
|
|
|
|
|
|
|
| Use |
|
Installing tile and plank over all approved floor and wall surfaces |
|
For sealing joints in ungrouted floors only. Not recommended for walls, vertical surfaces or plank. |
|
For grouting joints 1/16" to 1/4" wide. Can also be used for grouting most ceramic, quarry and porcelain floor tiles. |
|
|
|
|
|
|
|
| Limitations |
|
Not recommended for ceramic, porcelain or natural stone. |
|
Not recommended for ceramic, porcelain or natural stone. |
|
Not recommended for nonvitreous tiles or natural stone, exterior use, shower floors or underwater use. |
|
|
|
|
|
|
|
| Coverage |
|
200 to 250 sq. ft. per gallon |
|
320 sq. ft. per 8 oz. bottle |
|
|
Joint Width |
Approximate Coverage
16" x 16" Tile |
| 1/16" (1.6mm) |
450 sq.ft./gal. (42m²) |
| 1/8" (3.2mm) |
425 sq.ft./gal. (31m²) |
| 3/16" (4.8mm) |
275 sq.ft./gal. (26m²) |
| 1/4" (6.4mm) |
225 sq.ft./gal. (21m²) |
|
8" x 8" Tile |
| 1/16" (1.6mm) |
225 sq.ft./gal. (20m²) |
| 1/8" (3.2mm) |
165 sq.ft./gal. (16m²) |
| 3/16" (4.8mm) |
140 sq.ft./gal. (13m²) |
| 1/4" (6.4mm) |
115 sq.ft./gal. (11m²) |
|
|
|
|
|
|
|
|
| Applicator |
|
1/16" wide, 1/32" deep, 1/32" apart, trowel blade adapter included |
|
Applicator nozzle included |
|
Hard rubber float or green epoxy float. Cleanup with firm sponge and 3M® white pad. |
|
|
|
|
|
|
|
| Working Time |
|
Floors: 12 hours. Dry to tack - 45 to 60 min. under normal conditions.
Walls: 10 to 20 minutes. Dry to tack - 20 to 30 minutes |
|
N/A |
|
10 minutes- for best results apply grout in a 20 sq. ft. area on floors or a 10 sq. ft. area on walls and clean up immediately. |
|
|
|
|
|
|
|
| Set Up Time |
|
N/A |
|
Tack free - 1 hour;
Set up - 8 hours |
|
16 to 24 hours |
|
|
|
|
|
|
|
| Clean Up |
|
Wet - Water
Dry - Mineral Spirits (Caution: Mineral spirits is flammable) |
|
Wet - Water
Dry - Mineral Spirits (Caution: Mineral spirits is flammable) |
|
Wet - Water
Dry - Household ammonia cleaner.
Do not use grout haze removers. |
|
|
|
|
|
|
|
| Color |
|
Pale blue, turns clear when tacky dry |
|
White, turns clear when dry |
|
Popular versatile colors available |
|
|
|
|
|
|
|
| Tracers |
|
Dark Red |
|
N/A |
|
N/A |
|
|
|
|
|
|
|
| Unit Size |
|
1 gallon; 4 gallons |
|
8 oz. bottle |
|
1 gallon |
|
|
|
|
|
|
|
| Shelf Life |
|
1 year if unopened |
|
1 year if unopened |
|
1 year if unopened |
|
|
|
|
|
|
|
| Freeze/Thaw Stability |
|
Yes |
|
Yes |
|
Yes |
|
|
|
|
|
|
|
| Flammable |
|
No |
|
No |
|
No |
|
|
|
|
|
|
|
| Cautions |
|
Potential skin and eye irritant |
|
Potential skin and eye irritant |
|
Potential skin, eye and respiratory irritant |
DS100 and DS200 - WARNING: Potential eye and skin irritant.
DuraCeramic Premixed Grout - WARNING: Potential eye, skin and respiratory irritant.
Mineral Spirits - Caution: Flammable material; read and follow cautionary statements on label.
PRODUCT INFORMATION
SPECIFICATIONS AND RECOMMENDED USAGE
| PRODUCT INFORMATION |
|
DuraCeramic and DuraCeramic Options |
|
DuraPlank |
|
|
|
|
|
| Size (nominal) |
|
15 5/8" x 15 5/8" (40 cm x 40 cm) |
|
4 1/2" x 36" |
|
|
|
|
|
| Gauge (nominal) |
|
.160" (4.1mm) |
|
.160" (4.1mm) |
|
|
|
|
|
| Package per Carton |
|
10 pieces/carton; 17 sq. ft.; 1.58 m² |
|
16 pieces/carton; 18 sq. ft.; 1.67 m² |
|
|
|
|
|
| Shipping Weight |
|
DuraCeramic 29.5 lbs./carton
DuraCeramic Options 33 lbs./carton |
|
DuraPlank 34.5 lbs./carton |
|
|
|
|
|
| NBS Smoke Density |
|
Passes |
|
Passes |
|
|
|
|
|
|
Critical Radiant Flux
(ASTM E648>0.45w/cm²) |
|
Passes |
|
Passes |
|
|
|
|
|
| Motor Vehicle FMVSS 302 |
|
Passes |
|
Passes |
|
|
|
|
|
| Static Load Limit |
|
250 psi |
|
250 psi |
|
|
|
|
|
| Slip Resistance |
|
Meets ADA Recommendations |
|
Meets ADA Recommendations |
|
|
|
|
|
| PEI Rating |
|
3-4 |
|
N/A |
|
|
|
|
|
| Installation Method |
|
Grouted or Traditional Edge-to-Edge Fit (Ungrouted) |
|
Edge-to-Edge Fit |
|
|
|
|
|
| Subfloor Application |
|
On, above or below grade level |
|
On, above or below grade level |
|
|
|
|
|
| Adhesive |
|
Congoleum DS100 DuraSet Adhesive |
|
Congoleum DS100 DuraSet Adhesive |
|
|
|
|
|
| Grout |
|
DuraCeramic Premix Grout |
|
Not recommended |
|
|
|
|
|
| Joint Sealer (Recommended for ungrouted floors) |
|
DS200 Joint Sealer |
|
Not recommended |
|
|
|
|
|
| Suggested Usage |
|
Residential/Light Commercial |
|
Residential/Light Commercial |
|
|
|
|
|
| Warranty |
|
Residential - Lifelong Limited/Light Commercial - Five-Year Limited Commercial |
|
Residential - Lifelong Limited/Light Commercial - Five-Year Limited Commercial |
GENERAL INFORMATION
-
Always store and transport cartons on a flat surface stacked no more than 10 cartons high. Handle tiles, planks and cartons with care. Tiles and planks can be damaged if dropped.
-
Condition the room(s) and all flooring and setting materials at a constant temperature between 65°F (18°C) and 85°F (29°C) for 48 hours prior to, during and 48 hours after installation. Thereafter, maintain a room temperature between 55°F (13°C) and 100°F (38°C).
-
When installing flooring from two or more cartons, check the code on the side of the cartons to ensure that the pattern and shade numbers are the same. Mix tiles from several different cartons to achieve the best appearance.
-
For the best visual results, the directional arrows printed on the back of the tile should be installed following the illustration in Figure 1, with tiles turned randomly, i.e. north, south, east and west. Install planks with arrows pointing in the same direction following the illustration in Figure 2.
Special Instructions for DuraCeramic Options
DuraCeramic Options is designed with embossed center lines. To create an 8"x8" format, score the embossed line(s) with a sharp utility knife (Fig. 3) and flex the tile to separate the sections (Fig. 4). If necessary, use a sanding block with 100 grit open face sand paper to remove roughness at the separation edges. Once DuraCeramic Options is separated, it must be grouted.
Fig. 3 - Score with a sharp utility knife.
Fig. 4 - Flex tile and separate into 8" tiles
FLOORING INSTALLATIONS
Special Installation Tools
-
Notched trowel (1/16" wide, 1/32" deep, 1/32" apart)
-
100-pound, three-section, steel roller
-
Grout tools and spacers for grouted applications
-
18" tile cutter - optional
Subfloor Recommendations
DuraCeramic tile and DuraPlank may be installed directly over dry concrete on all grade levels, suspended wood, qualifying old resilient floors, ceramic tile and terrazzo. DuraCeramic tile and DuraPlank can also be installed over Congoleum UnderFlor, an optional floating underlayment system by Congoleum.
The surface must be clean, dry and free of dust, dirt, grease or other extraneous material that will inhibit bonding. Thoroughly vacuum floor to remove dust.
-
Deviations in the flatness of the subfloor cannot exceed 1/16" in 1' or 3/16" in 10'. Check the surface with a straightedge and fill low areas with a portland cement-based latex patching compound. Gypsum-based patching compounds are not recommended.
-
The use of a high-quality latex primer that is specifically designed to improve adhesion may be used over wood, porous concrete and patching compounds prior to adhesive application. The primer will help seal the surface and tie down dust that can interfere with the adhesive bond. Do not use paint primers.
SUBFLOOR RECOMMENDATIONS
|
Subfloor Construction/Materials |
|
Comments |
|
|
|
|
|
|
|
The subfloor surface must be smooth, solid and dry. |
|
|
|
-
Double layer construction over joist or trusses on 16" centers with at least 18" of well-ventilated air space.
-
Install 1/4" or heavier underlayment over strip wood, single layer wood floors and APA-Rated Sturd-I-Floor Systems.
|
|
Subfloor must be solid and free of movement. |
|
|
|
-
APA underlayment grade plywood with fully sanded face.
-
Hardwood and veneer underlayment panels such as Multi-Ply, HU 845 Tec-Ply and Ulay.
-
Lauan, particleboard, oriented strand board and chipboard create a higher risk for installation and adhesive failure and are not recommended unless warranted by the panel manufacturer or supplier.
-
Not recommended over cement backer-boards, glass mesh mortar units or acoustical cork.
|
|
Install according to panel manufacturers' written instructions |
|
|
|
|
|
Moisture vapor emissions not to exceed 5 lbs. |
|
Light Weight Concrete (Residential Application Only) |
|
|
|
|
Confirm adequate adhesion to substrate. |
|
Resilient Floor (See WARNING on inside cover) |
|
|
-
Smooth, non-cushioned sheet flooring and vinyl composition tile.
-
Embossed non-cushioned and thin cushioned vinyl flooring can be prepared with embossing leveler in residential applications.
-
Do not install over soft, heavy cushioned floors, flooring with a cushioned backing, self-adhering tile or tile installed below grade level.
|
|
Must be single layer, fully adhered and well bonded. Remove wax or polish. |
|
|
|
|
|
Fill grout joints level |
|
|
|
|
|
Remove. |
|
|
|
-
Portland cement-based compound, such as Ardex Feather Finish, Mapei Plani-Patch or equal.
-
Gypsum-based patching compounds are not recommended.
|
|
Refer to manufacturers' instructions for use and applications. |
Concrete Floors
Concrete must be clean, dry, and free of paint, curing, hardening and parting compounds, sealers, and old adhesive residue. Moisture vapor emissions should not exceed 5 lbs./1000 ft.²/24 hrs. when tested with the calcium chloride kit. Do not install DuraCeramic tile or DuraPlank over expansion joints; instead, cut the tile neatly to each side of the joint and fill it with an elastomeric polyurethane joint filler or cover with an expansion plate cover.
Wood Floors
Wood subfloors must be structurally sound and free of movement with at least 18" of well-ventilated air space below. Single layer floors and strip wood floors must be covered with a 1/4" or heavier underlayment to achieve a total subfloor thickness of 1". Position underlayment joints so they offset the joints in the tile by at least 3". Sand underlayment joints level and fill gaps wider than 1/32" with the recommended patching compound.
CONGOLEUM UNDERFLOR
The all-in-one underlayment system for floating installations of DuraCeramic tile and DuraPlank. Congoleum UnderFlor provides an economical solution for installing DuraCeramic, DuraCeramic Options and DuraPlank as a floating flooring system over a variety of subfloor surfaces. Now, one underlayment covers it all; wood, concrete, most old hard surface flooring, gypsum topping, even old adhesive residue in painted surfaces. Congoleum UnderFlor is constructed in 6' wide rolls, and since it is a floating underlayment, it requires no fasteners or special tools so it's quick and easy to install.
Recommended Use
-
Residential applications on all grade levels
-
Interior use in dry, heated areas
-
Do not install over ramps, in showers or other wet areas
General Information
-
Always roll sheets of Congoleum UnderFlor tightly around a tube with the vinyl side out for storing and transporting. Avoid distorting Congoleum UnderFlor.
-
Condition the room and all flooring materials at a constant temperature between 65°F (18°C) and 85°F (29°C) for 48 hours prior to, during and 48 hours after installation.
-
All UnderFlor underlayment and finished flooring must be installed with a 1/4" space around the perimeter of the room to allow for expansion and contraction of the flooring system and subfloor. Undercut door casing and slide finished flooring under for a finished appearance.
-
Use DS100 Adhesive only for installing Congoleum DuraCeramic tile and DuraPlank over Congoleum UnderFlor. Hard setting adhesives should not be used with Congoleum UnderFlor.
CONGOLEUM UNDERLFOR SUBSTRATE RECOMMENDATIONS
UnderFlor can be installed over the following surfaces:
|
Subfloor Construction/Materials |
|
|
Comments |
|
Notes |
|
Wood Structure |
|
-
Double layer construction over joist or trusses on 16" centers.
-
Single layer floors constructed with APA Rated Sturd-I-Floor T&G Panels, minimum 23/32" over joists or trusses on 16" centers.
|
|
Subfloor must be smooth, solid and free of movement with at least 18" of well ventilated air space below |
|
Underlayment |
|
|
|
Weather damaged or rough surface materials must be sanded smooth. Gaps wider than 1/8" should be filled level |
|
Concrete |
|
|
|
Moisture vapor emissions not to exceed 5 lbs. Fill depressions and cracks wider than 1/8" |
|
Gypsum Topping and Light Weight Concrete |
|
|
|
Fill depressions and cracks wider than 1/8" |
|
Resilient Floor |
|
-
Smooth, or textured sheet flooring
-
Vinyl composition tile
-
Do not install over soft, heavy cushioned floors, flooring with a cushioned backing or tile installed below grade level.
|
|
Must be single layer, fully adhered and well bonded. |
|
Ceramic and Stone |
|
|
|
Apply skim coat(s) to level the surface |
|
Old Adhesive Residue and Paint |
|
|
|
Follow recommended work practices for adhesive and paint removal |
Congoleum UnderFlor Installation
Install Congoleum UnderFlor with the vinyl side down just prior to installation of finished flooring. Determine the appropriate seam location and direction of the underlayment (depending on the finished flooring selection).
Important
For tile installation, position UnderFlor with seams at least 4" away from the joints in the finished floor tile. (Fig. 5)
For DuraPlank always install UnderFlor with seams running perpendicular to the long dimension of the plank flooring (Fig. 6). Install planks with staggered end joints positioned at least 2" away from the seams in the Congoleum UnderFlor.
Unroll the first sheet and trim it to fit allowing a 1/4" space between the edge of the sheet and the wall.
Unroll the second sheet and position it with the seam edge butted lightly up to the first sheet. If necessary, to adjust the seam location to ensure proper placement, overlap the sheets and double-cut a new seam in the desired location. Use a straightedge and utility knife to cut the seam.
Tape the sheets together with 2" wide clear packaging tape or other thin single face plastic tape available through office supply stores and most home centers. Apply the tape, centered directly over the top of the seam edges. Roll the tape with a steel seam roller.
Suitable Packaging Tapes Include:
Do not use masking tape, fiber reinforced tape, duct tape or other thick tapes that might telegraph through the finished flooring.
Install finished flooring immediately after installing Congoleum UnderFlor.
Installing DuraCeramic Tile and DuraPlank over Congoleum UnderFlor
Follow installation instructions for the finished flooring being installed. Install finished flooring with Congoleum DS100 DuraSet Adhesive using the recommended trowel notch size. Do not apply excess adhesive. Allow adhesive to dry completely to a tack prior to flooring installation. Slight growth (buckles) in the UnderFlor may occur immediately after adhesive application. This is normal and will not affect the finished flooring installation. Install finished flooring allowing a 1/8" ti 1/4" space around the entire perimeter. If necessary to adjust or remove a tile or plank, use a heat gun to warm it up first. Roll finished flooring on completion of the installation.
All finish trim and transition moldings must be installed so they do not bind or restrict the finished flooring from moving when expansion and contraction occurs during seasonal changes. Fasten the trim to the wall not to the subfloor. Do not drive fasteners into the floor or underlayment.
Seal all areas that may be exposed to surface spills, i.e. tubs, toilet and showers with a silicone caulking.
DURACERAMIC TILE INSTALLATION
Tile Layout
-
Layout is slightly different for grouted and ungrouted floors. The grout line width must be added to the tile dimension for layout on grouted floors. Additional chalk lines are also used to keep the joints straight. Nominal tile size is 15 5/8" x 15 5/8". DuraCeramic Options is 7 13/16" x 7 13/16" when scored and separated.
-
It is important to avoid positioning the tile joints directly over underlayment joints or seams in UnderFlor or existing flooring. If this should occur, reposition chalk lines to offset joints by at least 3" or half of the tile dimension.
Square Layouts
-
Place a mark in the center of the floor at each end of the room. Then snap a chalk line between the marks.
-
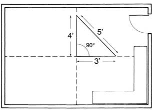
Find the center of the line and snap a second chalk line at a right angle; use the 3', 4', 5' method to form a right angle (Fig. 7)
Fig. 7 Square Layout
-
Make a dry layout in one quadrant along the center and perpendicular chalk lines. Remember to allow the desired grout line space between tiles. A story pole (board marked with tile dimensions, including grout line width) can also be used in place of a dry layout.
-
Measure the distance between the last whole tile and the wall. If the distance is less than half a tile, snap a new chalk line one-half the dimension of a full tile away from the original chalk line (Fig. 8). This will provide a balanced layout with larger cut tile at the border.
-
When installing grouted floor, divide the floor into smaller sections to help maintain consistent grout line widths and keep the joints running straight (Fig. 9). Each section should be the precise dimension of 2 or 3 whole tiles wide, including the grout line width. Lay out the smaller sections by starting at the center lines and measuring out towards the walls. It is not necessary to divide the room into smaller sections when installing ungrouted floors.
Note: Chalk lines can be easily removed or difficult to see after applying adhesive over some subfloor surfaces like old flooring and concrete. To avoid losing the lines, mark the subfloor with a pencil and straightedge, directly over the chalk lines.
ADHESIVE APPLICATION
Congoleum DS100 DuraSet Adhesive is a pressure-sensitive adhesive that must be allowed to dry completely to a tack before setting tiles. (See Special Instructions for Wall Applications).
-
Apply the adhesive with the trowel blade attachment included with the adhesive. The recommended trowel notch size, 1/16" wide, 1/32" deep, 1/32" apart.
-
Spread the adhesive over one-half of the subfloor and a few inches beyond the center chalk line.
-
Allow the adhesive to dry completely to a tack before installing the tile. Normal dry to tack time is about 45 to 60 minutes; longer in cool or humid conditions. The adhesive will turn from light blue to clear when tacky dry and will not transfer to the finger when firmly touched. Do not use fans to accelerate adhesive drying time. Fan drying can cause the top surface of the adhesive to dry prematurely, trapping residual moisture in and preventing the adhesive from fully curing.
-
Tile must be installed within 12 hours after adhesive turns clear.
SETTING FLOOR TILES
Carefully position the first tile into the adhesive at the intersection of the chalk lines (Fig. 10). The tile will bond instantly on contact so it must be positioned accurately without sliding it. Press the tile firmly into the adhesive. Follow the procedures below for grouted and ungrouted floors.
Fig. 10 - Positioning tiles.
Grouted Floors
-
The desired grout line width should be determined prior to starting the flooring installation. It is important to understand that the finished grout line will be 1/16" to 3/32" wider than the space between the tiles, since the grout will extend onto part of the radius along the top edge of the tile (Fig. 11).
|
Spacer Size |
1/16" |
1/8" |
3/16" |
1/4" |
|
|
|
|
|
|
|
Actual Grout
Line Width |
1/8" to
5/32" |
3/16" to
7/32" |
1/4" to
9/32" |
5/16" to
11/32" |
-
Use spacers to maintain the joint width. Small pieces of DuraCeramic or 1/8" tile, cut into 1" squares, work very well as spacers, depending on the desired grout line width.
-
If standard tile spacers are used, it will be necessary to remove one leg of the spacers (Fig. 12) otherwise it will interfere with positioning the tile. Stand spacers on end. Do not place tile spacers flat at the intersection of tiles; they can become bonded, making it difficult to remove them without damaging the edge of the tile.
-
Position two spacers along the edge of adjacent tiles, then lay the next tile gently against the spacers without forcing it into place (Fig. 13). Continue to set the tiles in straight rows to complete each section (Fig. 14). Follow the chalk lines to keep the joints straight and make minor adjustments if necessary. Remove the spacers immediately after setting each tile.
Fig. 12 - Use spacers with one leg removed
Fig. 13 - Position spacers before setting the tile
Fig. 14 - Set tile in straight rows
Ungrouted Floors
-
When installing an ungrouted floor, continue setting the tiles in a stair-step pattern along the center and perpendicular lines (Fig. 15). Hold the tile in a low angle to the floor and position it tightly against the previously laid tile. Press it firmly into the adhesive. Continue working toward the walls to complete the first quadrant before starting the next. Check to make sure corners are lined up and adjust if necessary to prevent run-out.
Grouted and Ungrouted Floors
Fig. 15 - Install ungrouted floors following a stair-step pattern
-
Roll the floor slowly, in both directions, with a 100-pound, three-section roller within one hour after setting the tiles (Fig. 16). Re-roll the entire floor immediately before grouting or applying the joint sealer.
Fig. 16 - Roll the floor within one hour after setting tiles
CUTTING TILE TO FIT
The last row of tiles will need to be cut to fit to walls and other vertical surfaces. (Remember to subtract the grout line dimension for grouted floors). Allow a 1/8" space for expansion, between the edge of the tile and the wall.
Straight Cuts
-
Measure the distance between the last whole tile and the wall. Subtract the dimensions for the grout and expansion space. Use this dimension to mark the tile.
-
Place a square or straightedge over the marks and score the surface with a sharp utility knife. Break the tile over the score mark by flexing it downward.
-
Install the tile with the cut edge against the wall.
Irregular Shapes
Wall Outlets
-
Mark the location of the outlet on the tile.
-
Score the surface with a sharp utility knife over the marks. Be careful not to extend the cut beyond the corners.
-
Warm the tile with a heat gun and press firmly over the score mark to remove the center section.
WALL, BACKSPLASH AND BASE INSTALLATION
WARNING: Electric Shock Hazard Exists
Electrical outlets and light switches on walls and backsplashes must be turned off prior to spreading adhesive or grouting. Shut off breaker(s) or remove the fuse(s) to turn off outlets and switches in the work area. Remove the cover plate and place tape over the entire electrical box. Do not use adhesive, grout or water near live electrical outlets or switches. Keep outlets and switches dry during installation.
Comply with all applicable building and electrical codes.
Special Installation Tools
Surfaces Preparation
DuraCeramic Options and DuraPlank can be installed over painted dry wall or plaster, plywood, prepared ceramic or plastic laminate surfaces.
-
The surface must be clean, dry and free of dust, dirt, grease or other extraneous material that will inhibit bonding.
-
Deviations in the flatness of the wall surface cannot exceed 1/16" in 1' or 3/16" in 10'. Check the surface with a straightedge and fill low areas with a portland cement-based latex patching compound. Gypsum-based patching compounds are not recommended.
-
Painted drywall and plaster must be smooth, dry and clean. Bare drywall, plaster and gypsum compounds must be primed with a high quality latex paint primer and allowed to dry for at least 48 hours. Existing surfaces must be thoroughly cleaned with a general purpose cleaner and water using a 3M white pad to remove all dirt and grease, and then rinsed thoroughly and allowed to dry completely. Check the surface for flatness with a straight edge and mark low areas with a pencil. Pay particular attention to unevenness at corners, window and door openings and joints in the wall board. Fill low areas with a portland cement latex patching compound. Set all protruding nails or screws flush with the surface.
-
WARNING: Do not sand painted surfaces. Some paints in the past contained lead. These paints could be the surface coat or an underlying coat on the walls in older dwellings. Painted surfaces that are known to be free of lead can be lightly abraded with a mild abrasive cleaning pad and cleaning solution if necessary.
-
Existing ceramic tile must be leveled with a portland cement patching compound following label instructions.
-
Plastic laminate surfaces should be checked to make sure they are clean and securely bonded.
-
1/4" plywood underlayment can be installed in areas where the wall surface is unsuitable for covering. The underlayment should be secured with paneling adhesive and screws. The screws should be sufficient length to penetrate the wall studs by at least 3/4".
Layout
Walls and other vertical surfaces will need to be laid out using a level to establish the horizontal and vertical center lines.
-
Locate the center of the wall or area to be covered with tile in the height and width directions.
-
Place the level over the center point and mark the wall with a pencil continuing the entire length of the wall (Fig. 17).
Fig. 17 - Use a level to establish vertical and horizontal lines
-
Make a dry layout in a single row on the floor to check the size of the cut tiles at the perimeter. Adjust the horizontal and/or vertical lines one-half the distance of a tile if necessary to achieve a larger tile at the perimeter.
-
Extend the horizontal line onto adjacent walls that will be covered so joints line up at the corners.
When covering large surfaces, lay out additional reference lines to help keep joints running straight and establish sections for applying only enough adhesive that can be covered within the working time (Fig. 18).
ADHESIVE APPLICATION
WARNING: See warning statement for shock hazards associated with tile installation near electrical outlets and switches.
DS100 DuraSet Adhesive is recommended for all approved wall, backsplash and base applications. The tile must be set into the adhesive while it is in a semi tacky dry state to achieve maximum bond strength on a vertical surface. Do not set tile in tacky dry adhesive on walls or other vertical surfaces.
-
Use a drop cloth to protect countertops and floors against adhesive spills.
-
Apply DS100 adhesive on the wall, starting at the center lines with the recommended notched trowel or a 1/4" nap smooth surface paint roller at a coverage rate of 200 sf/gal. When using a roller, apply a coat of adhesive thick enough that it completely covers the surface with a light blue color. Do not go back over adhesive once the desired coat has been applied.
-
Allow the adhesive to tack up for 20 to 30 minutes before setting the tile. The adhesive must be soft and sticky, not tacky dry when setting tiles on walls. Working time is 10 to 20 minutes under normal conditions, shorter in warm, dry conditions. Apply only enough adhesive that can be covered in working time. Reapply fresh adhesive with the flat side of the trowel over adhesive that has been allowed to dry.
SETTING WALL TILES
-
Set the first tile along the center lines and press it firmly into place. Avoid squeezing adhesive into the joints. The adhesive should be soft enough that the tile can be adjusted slightly if needed, but will not slip when pressed firmly into place.
-
Continue setting wall tiles in the semi tacky dry adhesive following the details for grouted tiles using a spacer and ungrouted tiles laid directly together.
-
Complete each adhered section including cut pieces before adhesive dries completely to a tack.
-
Spacers can normally be removed immediately.
-
Roll each section with a wall roller using firm pressure immediately after setting tiles.
-
Continue applying adhesive in small sections and setting tile to complete the wall.
-
Re-roll the entire wall immediately after tiles are set and again just prior to grouting.
-
The wall can be grouted immediately or within 24 hours.
Alternate Adhesive/Setting Method
PL Brand Polyurethane Construction Adhesive can be used as an alternative to DS100 for setting tiles on a vertical surface. This system provides a permanent bond and permits installation over a slightly rough or uneven surface.
-
The adhesive does not have sufficient tack to prevent the tile from slipping so it will be necessary to secure a ledger strip to the wall before starting.
-
Mark the wall at the bottom at the exact location where the last whole tile will end. Use a level to extend a pencil line along the entire wall at this point.
-
Screw or nail a straight furring strip below the line to temporarily rest the first row against.
-
Apply the PL Polyurethane Construction Adhesive directly onto the back of the tile. Apply a 1/8" bead of adhesive around the perimeter, about 1/2" in from the edge and place an "x" in the center of the tile.
-
Install the tile within 10 minutes. Several pieces can be glued at one time and then installed quickly before a surface skin develops.
-
Press each tile firmly into place with a slight back and forth shifting motion to flatten the adhesive beads. Use spacers to separate the tile joints on grouted applications. Leave the spacer in place only until the adhesive sets sufficiently to prevent tiles from slipping (2 to 4 hours). Roll the tile with a wall roller immediately after removing the spacers.
CUSTOM FLOOR INSTALLATIONS
Important Instructions for Using Different Spacer Sizes When Combining DuraCeramic and DuraCeramic Options
-
When installing custom installation that combine 16" x 16" formats with 8" x 8" formats, it will be necessary to use different size spacers to maintain straight joints. Tiles that have been scored and separated will have one additional grout line that needs to be calculated in the overall size (Fig. 19). To compensate for the additional grout joint, the separated tiles should be installed with a spacer that is one-half the thickness of the spacer used for the whole tiles (Fig. 20). The joints can be off-set on border tiles as an alternative to using different spacer sizes (Fig. 21).
-
Consider layout and spacer size when creating a pattern with two different tile sizes. First determine the actual size of the pattern repeat in both directions, including the grout line width (Fig. 22). Adjust the center lines so the pattern is balanced in the room and the desired appearance is achieved. (Fig. 23 A/B).
Fig. 20 - Separated border tiles use a spacer one-half the thickness of the whole tiles
Fig. 21 - An alternative to using different spacer sizes is to off-set the joints
Fig. 22 - Determine the dimensions for the pattern repeat
Fig. 23 - Reposition the center lines so the separated tile (A) or the whole tile (B) is at the center of the room to achieve the desired border appearance.
Diagonal Layouts
-
Lay out the center and perpendicular lines as previously described for a square layout. Place a mark on each line an equal distance away from the center point (distance from center is arbitrary).
-
Use a slightly larger arbitrary sizes and swing an arc on both sides of each line from points E, F, G, H (Fig. 25). Snap diagonal chalk lines at the point where the marks intersect. If done correctly, the chalk lines will intersect at the center point.
-
Make a dry layout in one quadrant along the center and perpendicular chalk lines.
-
Measure the distance between the last whole tile and the wall. If the distance in either row is less than one-forth of the diagonal dimension of the tile (whole tile = 5 1/2" and a separated tile = 2 3/4"), adjust the starting point and snap a new chalk line (use the dimension for the tile being installed) away from the original chalk line (Fig. 26). This will provide a balanced layout with larger cut tile around the perimeter.
Installing Borders and Insets
Borders can be created easily by using an accent color or different size tile on a square layout. Plan the layout to allow for a uniform border size using full size tile in the field if possible.
When using a square border with a diagonal layout and a square border, it will be necessary to prepare the cut edge of the diagonally cut tile. First cut the tile to the desired size. Then heat the cut edge and back of the tile with a heat gun to soften it. Place the tile on a flat surface and roll the edge with a steel hand roller to turn the edge downward, forming a slight radius (Fig. 27). Allow the tile to cool before installing it.
Fig. 27 - Roll the cut edge to form a slight radius
GROUT AND JOINT SEALER APPLICATION
WARNING: See warning statement for shock hazards associated with tile installation near electrical outlets and switches.
Grouting Floors and Walls
-
DuraCeramic and DuraCeramic Options can be grouted immediately or within 24 hours after setting the tiles.
-
Tiles must be grouted using DuraCeramic Premix Grout. This exclusive premixed acrylic grout is designed for high flexural strength and adhesion to the edge of the tile. This feature provides durability to resist cracking from thermal dimensional changes and normal subfloor deflection. Traditional cement grouts are not recommended and will not perform properly.
Grout Application
Tools and Equipment
-
Hard, green, rubber epoxy float
-
Firm, square-edge sponge
-
3M® white nylon scrubbing pad
-
Spray bottle of water
-
Water buckets
-
Rubber gloves
-
Safety glasses
Soft grout floats and soft sponges are not recommended because they tend to pull the grout out of the joint, leaving it shallow.
Surface Preparation
Application
-
Start grouting floors at the far end of the room and work toward the entrance. Walls should be grouted starting at the bottom and working upward in narrow columns. This will reduce the possibility of water flowing into ungrouted joints during cleanup.
-
Apply grout in small sections, up to 20 sq. ft. and cleanup immediately or before grout films over (approximately 5 minutes).
-
Use the tip of a hard rubber float and fully pack the grout into the joints (Fig. 28). Hold the float in a low angle and press firmly with short strokes at a right angle to the joint.
Fig. 28 - Pack the grout into the joints.
Fig. 29 - Extend grout a few inches into the next row.
Initial Cleanup
Initial cleanup should be done immediately after finishing each section. The faster the grout is removed from the tile, the easier it is to clean up.
-
Apply a light mist of water with the spray bottle over the grouted tiles and allow it to remain on the surface for at least 30 seconds.
-
Use a slightly wet 3M white nylon pad to loosen the grout residue. Apply light pressure while moving the pad in a circular motion (Fig. 30).
-
Use a firm square edge sponge to remove the excess water solution. Use light pressure and wipe diagonally across the joints (Fig. 31). Do not allow the water to flow into the ungrouted joints or accumulate in finished areas.
-
Then rinse the sponge in clean water and wipe diagonally again to shape joints evenly and remove any remaining grout residue. Change rinse water frequently. Clean tools with water while grout is wet. If allowed to dry, remove with ammonia.
Fig. 30 - Use a 3M white, nylon pad to loosen grout residue
Fig. 31 - Wipe diagonally across the joints to remove excess water
Final Cleanup
-
Allow grout to dry for 24 hours.
-
Remove any remaining grout haze with an ammonia-based window cleaner or a dilute solution of 1/4 cup household ammonia to one gallon of warm water. Apply a small amount of the solution over a small section and allow it to remain for about 30 seconds. Use a clean sponge mop or a 3M nylon white pad to loosen the grout haze. Rinse with fresh water and buff with a soft, dry terry cloth towel. Do not use grout haze removers or solvents.
Keep all traffic off of newly tiled floors for 24 hours. Resume normal traffic after 48 hours.
Joint Sealer Application
DuraCeramic DS200 Joint Sealer is designed to keep surface water and dirt from penetrating ungrouted floor joints. Do not use joint sealer on walls, other vertical surfaces or apply to DuraPlank or the embossed center lines on DuraCeramic Option when installing a full 16" x 16" format. Apply joint sealer to the tile joints only.
Surface Preparation
-
Roll the floor with a 100 lb., three-section roller just before sealing the floor and check to make sure all edges are tightly seated in the setting adhesive. The joints must be clean and dry. Remove any adhesive smears from the surface and edges of the tile with mineral spirits before sealing. Vacuum the floor to remove dust and loose particles.
Application
-
Shake the applicator bottle and allow air bubbles to dissipate before using.
-
Remove the plastic cap and screw the applicator tip onto the bottle.
-
Cut 1/16" off the applicator tip to provide a small opening.
-
Start in the far corner of the room and apply a uniform 1/16" bead of sealer in the tile joint. Apply the sealer to the first 2 or 3 rows, then come back immediately and seal the perpendicular (cross) joints in this area before the sealer develops a surface film (about 4 minutes). Repeat this process to seal the entire floor.
-
The color of the sealer will change from white to clear when it dries.
-
If the nozzle becomes clogged, use a straight pin to free the flow.
-
Protect newly applied joint sealer from foot traffic and dust until it dries, (approximately 8 hours). Keep traffic to a minimum and do not wash the floor for the first 48 hours.
-
Use water cleanup for wet sealer and mineral spirits for dry sealer. Caution: Mineral spirits is flammable. Read and follow label instructions.
DURAPLANK INSTALLATION
General Information
-
Directional arrows are printed on the back of each plank. Install planks with arrows pointing in the same direction.
-
When using flooring from two or more cartons, make sure the pattern and run numbers found on the carton are the same.
-
Complete a dry layout in a small section of the room to confirm the best arrangement.
-
Remember to offset end joints randomly in each row, avoid small cuts of less than 6" at the border, and be sure to place cut ends toward the wall.
-
Maintain proper temperature at the time of installation in order to minimize thermal dimensional changes.
Floor Layout
-
Place a mark in the center of the floor at each end of the room. Snap a chalk line between the marks (Fig. 32).
-
It may be necessary to adjust the center line to avoid small border pieces at side walls. To do this, measure the distance between the center line and the side wall. Divide the measurement by the plank width (4 1/2"). If the remainder is less than half a plank width, adjust the center line one half the width of a plank in either direction (Fig. 33).
Adhesive Application
-
Spread Congoleum DS100 adhesive over one-half the floor up to the center line with a notched trowel (1/16" wide, 1/32" deep, 1/32" apart).
-
Allow adhesive to dry to a tack, normally 45 to 60 minutes (longer in cool or humid conditions), before installing plank. Adhesive will turn from light blue to clear when ready.
-
Start installing the plank along the center line (Fig. 34).
-
Complete each row, including cut pieces at the wall before proceeding to the next row. Offset cross joints by at least 6" and position planks in a random fashion for the best appearance.
-
Position each plank, tightly against the previous one, by pressing it firmly into place without sliding it.
-
Complete the opposite side of the room following the same procedure. Roll the entire floor with a 100-pound, three-section roller.
-
Restrict to light traffic for the first 24 hours.
Cutting Plank to Fit
The last row of plank will need to be cut to fit to walls and other vertical surfaces.
Straight Cuts
-
Place a loose plank directly over the top of the last full plank, making sure all edges are lined up. Use a whole plank as a measuring device. Position one edge against the wall and mark the loose plank with a pencil along the opposite edge (Fig. 35).
-
Next, place the marked plank on a cutting board. Using a carpenter square as a guide, score the pencil line deeply with a sharp knife. Break or cut plank along the score mark. CAUTION: Keep fingers away from knife blade to avoid injury. Install the plank with the cut edge against the wall.
Irregular Cuts
Scribe plank to fit to irregular shapes such as door trim, pipes, etc. Gently warm the plank with a hot air heat gun and cut with a utility knife. Allow the plank to cool before installing it.
Custom Installation
-
DuraPlank can be installed with DuraCeramic or DuraCeramic Options to create decorative insets and borders. Heat and roll all cut edges at joints.
-
Leave a grout joint between the plank border or inset and the tile on grouted installations.
-
On ungrouted installations, position the edge of the plank against the tile. Remember to heat and roll all cut edges. Apply DS100 Joint Sealer to the tile joints and along the edge where the plank and tile meet. Do not seal the joints in the DuraPlank with DS200 Joint Sealer.
IMMEDIATELY AFTER INSTALLATION
-
Install or replace base moldings and return furniture to the room by rolling or sliding them over strips of hardboard.
-
Use acrylic caulking at bathtubs, showers and other wet areas to prevent water from seeping under the floor.
-
Wait 48 hours before damp mopping the floor and at least 5 days before wet mopping or washing. Adhesive smears can be removed with mineral spirits.
REPAIR
DuraCeramic, DuraCeramic Options and DuraPlank can be repaired easily if it is necessary to replace a tile or plank.
Grouted Floors and Walls
-
Use a heat gun to warm the grout along one edge of the tile. The grout will soften when heated.
-
Place a straightedge over the center of the grout line and cut the grout with a sharp utility knife. (Fig. 36).
Fig. 36 - Cut along the center of the grout line after heating it
-
Remove as much of the grout as possible using care to avoid cutting into the edge of the adjacent tile. Repeat this process on all four sides of the damaged tile.
-
Next, heat the tile a few inches from the corner. While the tile is warm, drive a putty knife or screwdriver into the heated area with a hammer (Fig. 37).
-
Then, pry upward to release the tile from the adhesive. Continue lifting the tile as you heat it until it is completely removed.
-
To install the new tile, re-apply DS100 DuraSet Adhesive over the exposed subfloor using the flat side of a trowel; it is not necessary to remove the old adhesive.
-
Allow the adhesive to dry completely to a tack and then reinstall the new tile using spacers to maintain the grout line width.
-
Roll the tile with a 100-pound, three-section roller.
-
Re-grout the tile with DuraCeramic Grout following label instructions. Allow grout to dry for 24 hours and remove any remaining grout haze.
Fig. 37 - Drive a putty knife into the heated area and pry upward
Ungrouted Tile Floors
-
Use a utility knife and carefully cut through the joint sealer using care to avoid cutting into the adjacent tiles.
-
Follow the same procedure for Grouted Floors to remove the tile and re-adhere the replacement tile.
-
Re-apply DuraCeramic DS200 Joint Sealer along all four sides of the tile to seal the joints.
Plank Floors
Congoleum UnderFlor Repair Techniques
Repair techniques are very easy on Congoleum UnderFlor installations. Use these procedures for repairs for DuraCeramic, DuraCeramic Options or DuraPlank installed over Congoleum UnderFlor.
Ungrouted Repair
-
Carefully score the tile or plank to be removed across the corner edge about 1 inch from the corner.
-
Apply heat to the area.
-
Using a putty knife and hammer, position the putty knife over the scored edge and tap it until the corner is released.
-
Apply heat as you go and carefully begin to pry up the piece from the Congoleum UnderFlor using a putty knife. If you keep the tile or plank heated, it should release without damaging the UnderFlor.
-
When the piece has been removed, check the adhesive tack. If it is still tacky to the touch, simply position the new piece in place.
-
If the adhesive is not tacky, reapply adhesive with the flat side of the trowel and let it tack up. Then set the replacement piece into place.
-
Roll the replacement piece with a roller.
Grouted Repair
-
Use a heat gun to warm the grout.
-
Using a sharp utility knife, carefully score the joint, cutting through the grout. Make sure that you do not apply a lot of pressure because you do not want to cut into the Congoleum UnderFlor. Carefully score the tile or plank to be removed across the corner edge about 1 inch from the corner.
-
Apply heat to the area.
-
Using a putty knife and hammer, position the putty knife over the scored edge and tap it until the corner is released.
-
Apply heat as you go and carefully begin to pry up the piece from the Congoleum UnderFlor using a utility knife. If you keep the tile or plank heated, it should release without damaging the UnderFlor.
-
When the piece has been removed, check the adhesive tack. If it is still tacky to the touch, simply position the new piece in place.
-
If the adhesive is not tacky, reapply adhesive with the flat side of the trowel and let it tack up. Then set the replacement piece into place.
-
Roll the replacement piece with a roller.
-
Re-grout the tile with DuraCeramic grout following label instructions. Allow grout to dry for 24 hours and remove any remaining grout haze.
Replacing the Congoleum UnderFlor
If the Congoleum UnderFlor is cut or damaged during the repair procedure and needs to be replaced, follow these procedures.
-
Using the piece that was removed as a template, cut a fill piece of Congoleum UnderFlor.
-
Slide pieces of thin, clear, sticky, one-sided packaging tape centered under the cut out edges.
-
Tip: Here's a tip to make it easier to slide the tape under the edges. Cut the piece of Dura product that was removed to make it about 1 inch shorter. Cut the thin packaging tape to that dimension. Carefully fasten the tape along the edge of the product overlapping it about 1/4 inch. Turn the piece over so that the tape is now sticky side up and slide it under the cut out edge. Firmly press down on the edge and pull the replacement piece away to release the tape.
-
Carefully lay in the new cut piece of UnderFlor pressing it firmly onto the tape.
-
Apply a thin layer of DS100 DuraSet Adhesive to the Congoleum UnderFlor and allow it to tack up.
-
Lay in the replacement flooring and roll it to set it in place.
-
Roll the replacement piece with a roller to set it.
-
If necessary, re-grout the tile or reapply DS200 Joint Sealer to finish the repair.
PREVENTIVE CARE
-
Make sure furniture legs have large surface, nonstaining floor protectors. Replace small, narrow metal or dome shaped glides with smooth, flat glides that are in flat contact with the floor.
-
Glides should be equipped with self-adhesive pads to avoid scratching the surface of the floor. The pads should be checked periodically for grit and wear and replaced when necessary.
-
Heavy furniture or appliances that are not moved often should be equipped with flat, nonstaining composition furniture casters or cups of appropriate size - available square from 1 1/2" to 2 5/8" and round from 1 3/8" to 1 5/8".
-
Mobile appliances and furniture should be equipped with easily swiveling casters. They should be at least 2" in diameter with nonstaining hard rubber treads at least 3/4" wide. Do not use ball-shaped casters.
-
Place mats at outside entrances to prevent dirt, grit and soil from being tracked onto your floor.
-
CAUTION: DuraCeramic, DuraCeramic Options and DuraPlank, like other types of hard-surfaced floors, can become slippery when wet. Allow time for the floor to dry after washing. Immediately wipe up wet areas from spills or wet feet. Place mats at outside entrances to prevent water, snow or ice from being tracked onto your floor. Improper polishes or finishes can also cause slipperiness.
REGULAR CARE
-
Sweep or vacuum regularly to remove grit and sand that can abrade, dull or scratch your new floor. Do not use a vacuum with a beater brush, because it may damage the floor surface.
-
Wipe up spills promptly with a damp cloth or mop.
-
-
CAUTION: Avoid one-step "mop and polish" products, dishwashing liquids and oil-based cleaners. These may leave a residue which can attract dirt and dull the floor finish. Avoid cleaners that contain abrasives or solvents which may permanently damage the floor.
-
Do not use acrylic or silicone sealers or penetrating sealers on the tile surface. A copolymer or acrylic grout sealer compatible with acrylic grouts may be used on the grout. Do not use a penetrating silicone sealer on the grout.
-
The use of floor polish is optional. Light commercial areas that receive a high concentration of traffic or more frequent spills can be maintained with Congoleum Commercial Satin-Gloss Polish (C3100) for added protection. Do not buff the floor.
WARRANTY
Residential DuraCeramic Limited Warranty
Congoleum provides a lifelong warranty that your floor:
The Residential DuraCeramic Limited Warranty covers materials for the period of the warranty, and reasonable labor costs for the warranty period if professional installation was paid for when the original floor was installed.
Five-Year Commercial DuraCeramic Limited Warranty
The Five-Year Commercial Limited Warranty means that the floor:
The Five-Year Commercial Limited Warranty covers material for the warranty period, and reasonable labor costs during year 1 if professional installation was paid for when the original floor was installed. For years 2 through 3, covers material and 50% of reasonable labor costs if professional installation was paid for when the original floor was installed. After the third year, covers material only - labor will not be paid.
The Residential and Commercial warranties apply to DuraCeramic tiles and DuraPlank only and exclude grout and installation services.
For additional information and complete warranty information contact
Congoleum Corporation
Dept. C
3500 Quakerbridge Road
P.O. Box 3127
Mercerville, NJ 08619
Our telephone number is 1-800-274-3266